FTZ Friesack Halle 3
August 2019

Feuerwehrtechnisches Zentrum
Berliner Allee 30
14662 Friesack
Landkreis Havelland

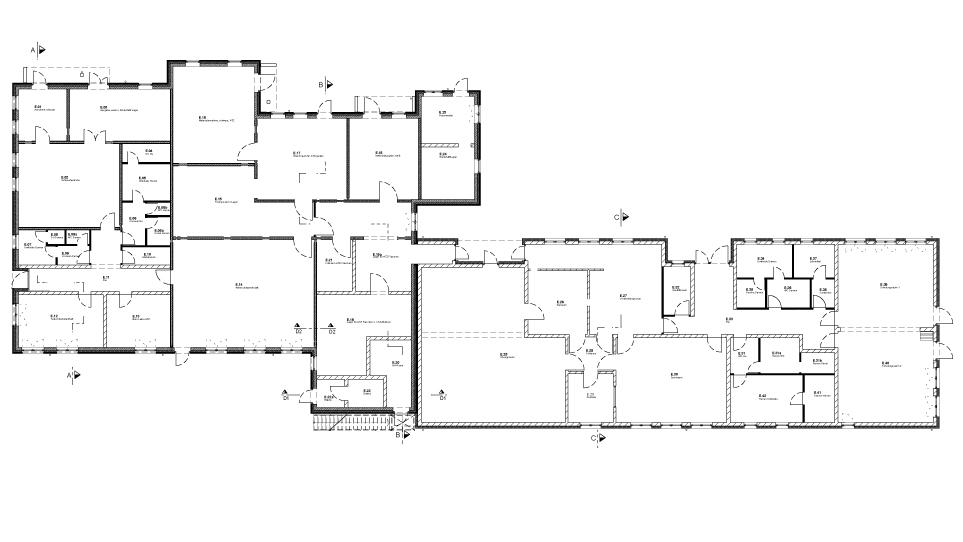
Neubau eines Atemschutz- und Schlauchpflegezentrums mit Werkstatt, Lager und Sozialräumen sowie Schulungs- und Ausbildungsräumen, Nettofläche: ca. 957 m², 1-8 der HOAI

Mit dem Neubau der Halle 3 soll das Feuerwehrtechnische Zentrum FTZ in Friesack um ein Atemschutzzentrum ATZ und ein Schlauchpflegezentrum SPZ erweitert werden.
Im ATZ werden Atemschutzgeräte und Chemikalienschutzanzüge gereinigt, geprüft und instandgesetzt.
Im Schlauchpflegezentrum werden Saug- und Druckschläuche gereinigt, gewartet und instandgesetzt.

Im Wesentlichen besteht die Halle 3 aus zwei Gebäudeteilen.
Ein eingeschossiges Werkstattgebäude für die SP und den AT zusammen mit einem zweigeschossigen Technikbereich und einem direkt anschließendem Schulungs- und Ausbildungsgebäude.

Die Wärmeerzeugung erfolgt bivalent über eine Luft-Wärmepumpe und eine Gasbrennwerttherme.

Das geplante Gebäude hat eine Ausdehnung von 65 m x 25 m mit einigen Vor- und Rücksprüngen.

Die Tragkonstruktion der Werkstatt besteht aus vorgefertigten Stahlbetonfertigelementen mit integrierter Dämmschale in den Außenwänden.
Die Ausbildung des Fußbodens erfolgt entsprechend der Nutzung als Industriefußboden mit Epoxidharzbeschichtung und in Teilbereichen mit Belag auf Estrich und Wärmedämmung.
Die Belichtung der innenliegenden Räume erfolgt teilweise über Oberlichter.

Die Umfassungswände des Ausbildungs- und Schulungsbereiches werden Mauerwerkswände mit Wärmedämmung.
Die Dachkonstruktion besteht aus Holzsparren mit Zwischensparrendämmung und einer Metallplattendeckung.
Die Schulungsräume erhalten eine Akustikdecke.