BHKW Wernigerode

Waldhofstraße in 38855 Wernigerode
Stadtwerke Wernigerode GmbH

Errichtung einer versorgungstechnischen Einrichtung mit zwei Spitzenlastkesseln und zwei Blockheizkraftwerken "BHKW-Anlage Waldhofbad", Nettonutzfläche: über zwei Geschosse ca. 674 m², 2-8 der HOAI

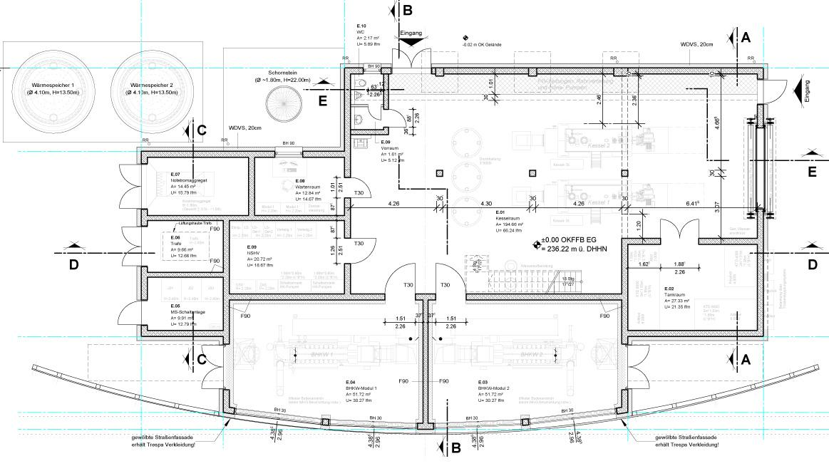
Zur weiteren Verdichtung des innerstädtischen Fernwärmenetzes sowie zum Anschluss von öffentlichen Gebäuden, wie z.B. Rathaus, Museum, Archiv, Schule und Harzer Schmalspurbahn, wird eine neue BHKW- Anlage am Ochsenteichgelände in der Waldhofstraße in mehreren Ausbaustufen errichtet.
Das Gebäude ist eingeschossig jedoch mit zweigeschossiger Nutzung im Kesselraum (Gitterrostebene auf Stahl-/ Stahlbetonunterkonstruktion im Inneren). Die Bühnenebene liegt bei ca. 3.80m und die Gebäudehöhe bei ca. 8.20m.

Die Gründung erfolgt aufgrund der schlechten Bodenverhältnisse auf ca. 90 Bohrpfählen.
Die zu verwendenden Materialien werden vorrangig Stahlbeton und Stahl sein.
Im Endausbau sollen hier zwei BHKW-Module betrieben werden. Die Spitzenlast soll durch zwei Kessel abgedeckt werden, welche nur mit Erdgas betrieben werden.
Um die gesamte Peripherie (Nieder- und Mittelspannung, Trafo, BHKW-Module 1+2, Kesselhaus, Lüftung, Steuerzentrale, … etc.) im Gebäude unterzubringen, ist eine Gebäudegrundfläche von ca. 476m² notwendig.
Die Anlage soll als „Gläsernes Kraftwerk“ errichtet werden und erhält straßenseitig eine große Glasfassade, um Passanten den Blick ins Innere des Kraftwerkes zu ermöglichen.
Die straßenseitige West- Fassade an der B244 wird mit einem Kunststoffplattenbelag bekleidet, welcher sich gemäß dem vorgegebenen Straßenradius wölbt.
Außerhalb des Gebäudes sind zwei Wärmespeicher mit je 100m³ Speichermenge,
ein 4-zügiger Schornstein und eine Trafostation geplant.