Café Thonke Premnitz
2010

Heinrich-Heine-Straße 2, 14727 Premnitz
Olaf Thonke

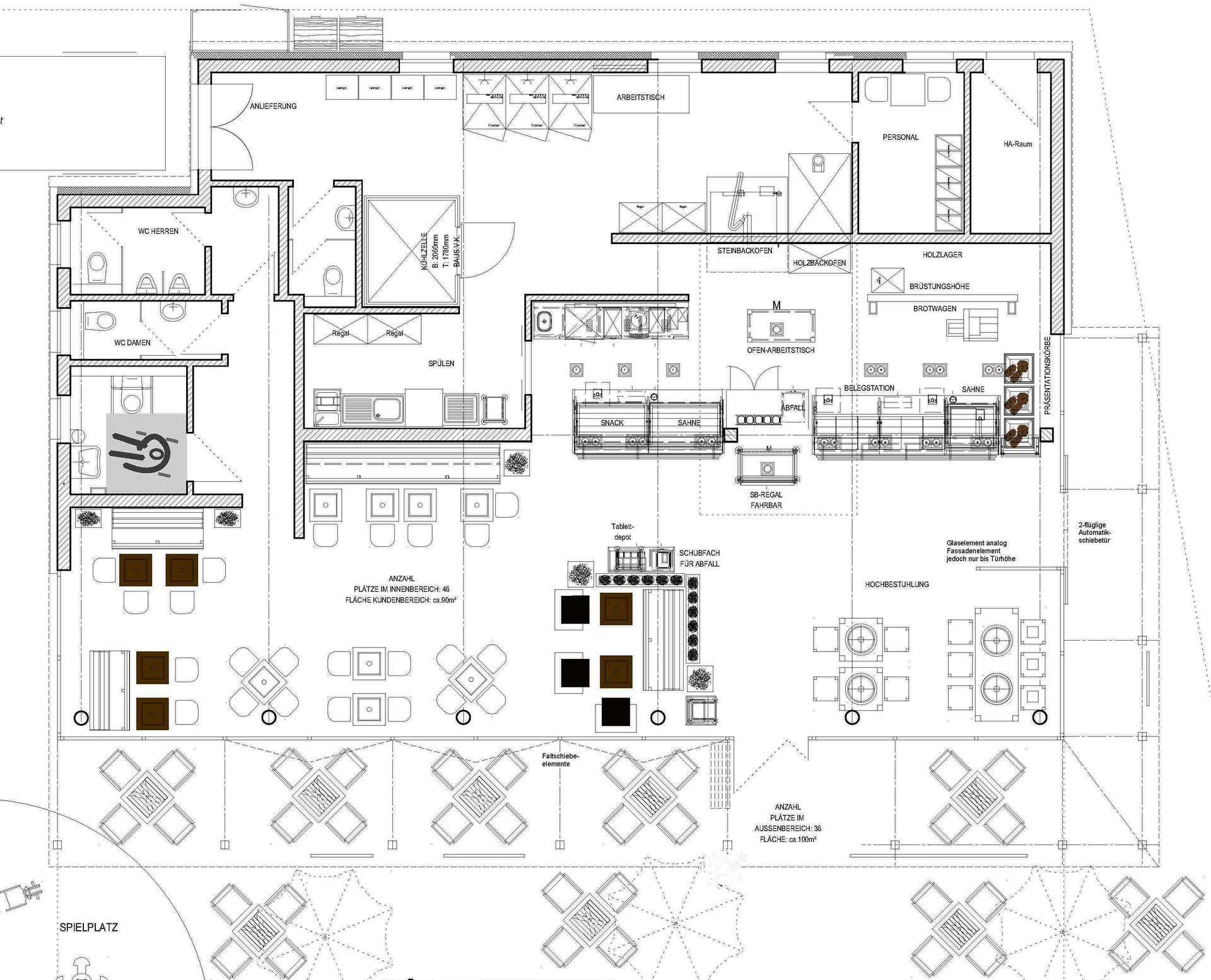
Neubau Café und Bäckereiverkauf, 250 m² - davon 160 m² für das Café, 30 m² für den Verkauf und 60 m² für Vorbereitung, Nebenräume und WC´s, Grundstücksfläche 1450 m² vollständig genutzt, 1-9 der HOAI

Café und integrierter Backwarenverkauf, 45 Sitzplätze im Innenbereich und 36 im Außenbereich.

Spielgerät für Kinder in Kombination mit den Sitzflächen im Außenbereich;
der Sonnenschutz dient als Werbeträger und kann vom Gast manuell beliebig in eine schattenspendende Position verschoben werden;
Eröffnung Anfang April nach einer Bauzeit von ca. 7 Monaten und einem langen und harten Winter;
reduzierte Geräuschkulisse durch schallabsorbierende Elemente in der Decke;
Backofen mit Holzpellets als Brennstoff im Verkaufsbereich

Klimatisierung/ Lüftung des Café´s
Ladenbau
Korte Einrichtungen GmbH
Wippenführter Straße 440
51515 Kürten

Planung und Umsetzung der Haustechnik erfolgte in Zusammenarbeit mit dem Büro
Welterstherm GmbH
Sprengelstraße 16
14770 Brandenburg a. d. Havel