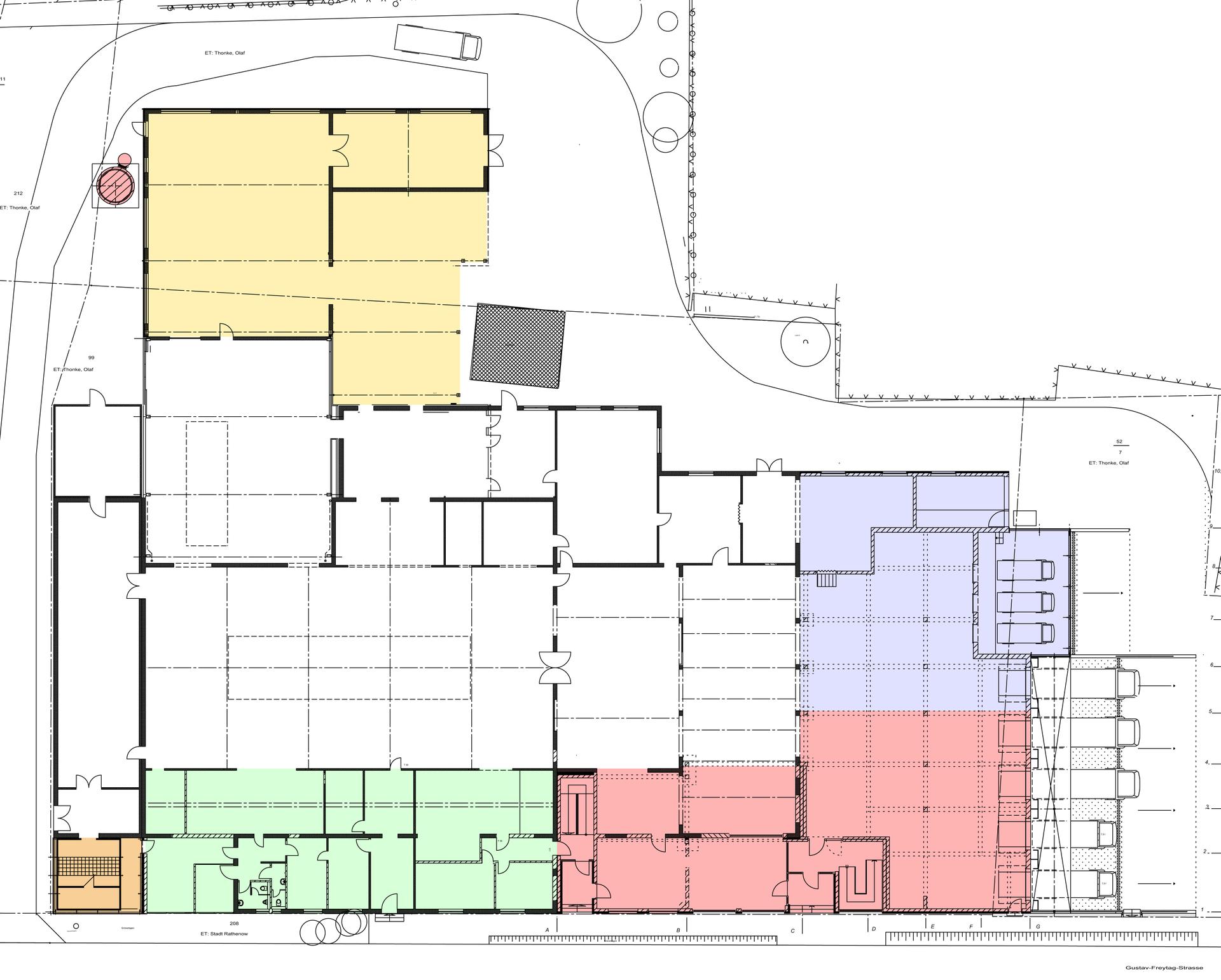
Bäckerei Thonke
2006 und 2010

Gustav-Freytag-Straße 2, 14712 Rathenow
Olaf Thonke

Erweiterung der Bäckerei um Flächen für die Produktion, Auslieferung und Verwaltung, 3.950 m² nach der Erweiterung, davon 490 m² als Konditorei 2006 und 1.370 m² für Kommissionierung, Verwaltung und Produktion 2010, 1-9 der HOAI

Bei der Bäckerei Thonke handelt es sich um eine Filialbäckerei.
Erweitert wurde die Produktionsstätte mit den Teilbereichen Kommissionierung/ Auslieferung, Konditorei, Verwaltung, Retouren, Backbereich und Haustechnik.

Genehmigung nach Industriebaurichtlinie;
Brand- und Schallschutzgutachten wurden in Zusammenarbeit mit Fachgutachtern erstellt und in der Planung berücksichtigt;
Bauzeit ca. 7 Monate - im laufenden Bereich - Erweiterung der Kommissionierung/ Auslieferung;
Überbauung des Bestandes mit einem Geschoss (Verwaltung/ Sozialtrakt);
Bäckereinotwendige Einbauten wie: Waschanlagen für Bleche und Körbe, Wagenöfen mit Thermoölkreislauf, Andokstation für unterschiedlich hohe Lieferfahrzeuge und Kühlzellen wurden mit geplant und deren Ausführung betreut;
Einbau einer Wärmerückgewinnung für die anfallende Wärme aus dem Backvorgang - die Anlage versorgt Wäsche, Lüftungsheizung und statische Heizung - die antizyklisch anfallende Abwärme aus dem Backvorgang wird in 2 Speichern a 16.000 l gespeichert.

Die Planung und Umsetzung der Haustechnik erfolgte in Zusammenarbeit mit dem Büro
Welterstherm GmbH
Sprengelstraße 16
14770 Brandenburg a. d. Havel