Domkietz 7 und 8
1993

14776 Brandenburg a. d. Havel
Stadt Brandenburg an der Havel, Untere Denkmalschutzbehörde

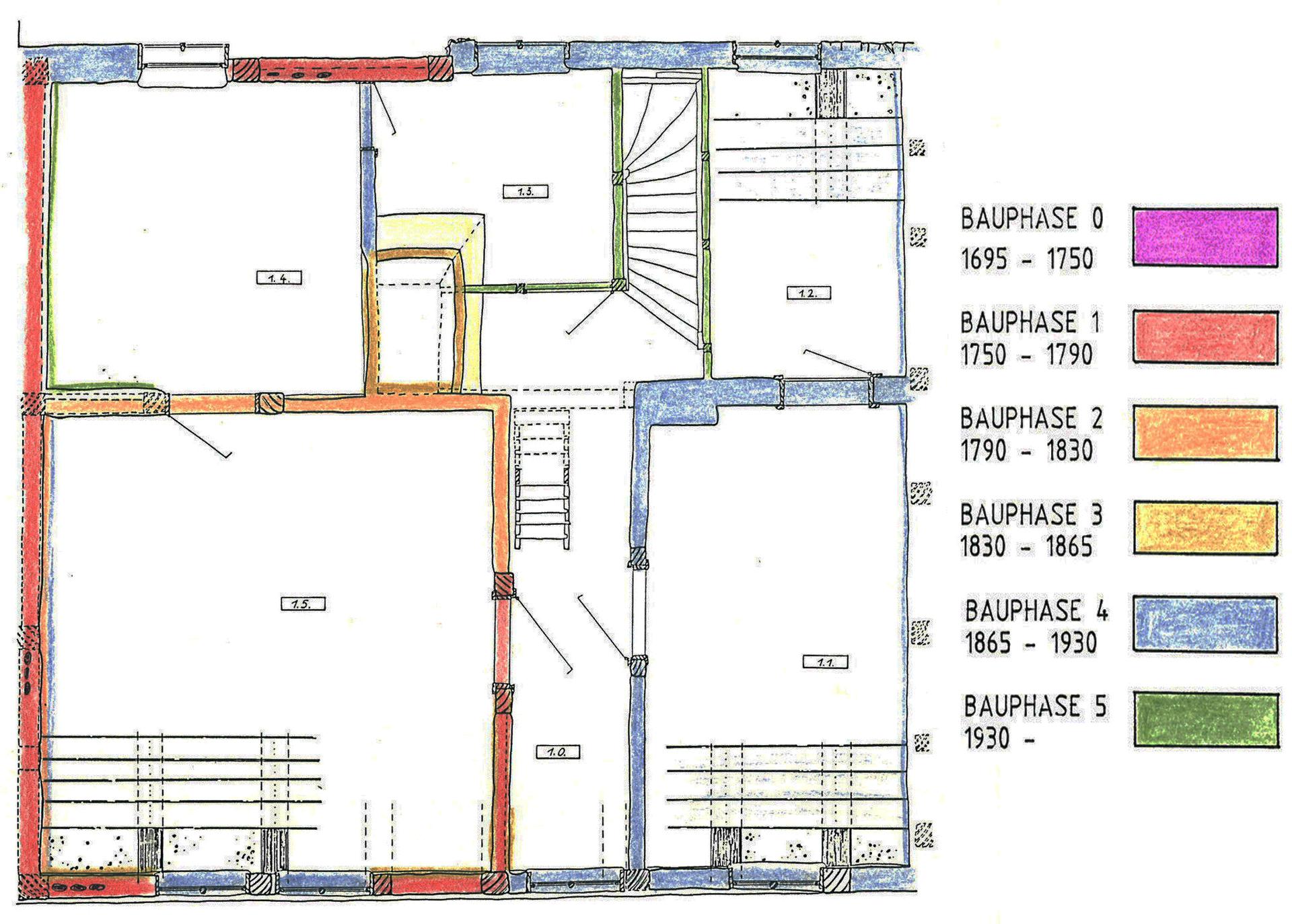
Verziehungsgerechtes Aufmaß Domkietz 7 und 8 , schnurgerechtes Aufmaß im Maßstab 1:20 und Analyse der baulichen Entwicklung

Verziehungsgerechtes Aufmaß zweier Kietzhäuser in der Stadt Brandenburg (Dominsel) im Rahmen eines Bauforschungsprogrammes zur Gliederung mittelalterlicher bzw. spätmittelalterlicher Häuser - Hausforschung in der Stadt Brandenburg

Untersuchung der Struktur kleinbürgerlicher Wohnhäuser im Randbereich der Stadt mit Dokumentation der einzelnen Bauphasen